
Koszt wysyłki: od 0,00 zł
Numer katalogowy: 97877004
Kod producenta: BU8734150907
Stan magazynowy: 1 szt.
Kod EAN: 4062321901677
Waga: 41,00 kg
Zestaw:
1. Kocioł BUDERUS GB172I.2 25 W H - 7736902461 - 1 szt
- panel BC400 ( wbudowany w kocioł gazowy )
- czujnik pogodowy FA ( w pudełku z kotłem )
2. IW-MV-1 Płyta podłaczeniowa 7738112657 - 1 szt
3. Sterownik RC100.2 - 7738112964 - 1 szt
Logamax plus GB172i.2: Idealny w przypadku modernizacji i nowych instalacji
Dzięki swojemu wyposażeniu kocioł Logamax plus GB172i.2 jest idealnym rozwiązaniem, szczególnie w przypadku renowacji, ponieważ jest niezawodny i wydajny we wszystkich zastosowaniach.
Dobrze zaprojektowany od początku do końca
Logamax plus GB172i.2 jest fabrycznie w pełni wyposażony, co bardzo ułatwia instalację systemu lub wymianę części. Dzięki zunifikowanym złączom jest kompatybilny z poprzednimi modelami Logamax plus GB172i. Oferuje jeszcze łatwiejszy dostęp do wymiennika ciepła dzięki zdejmowanemu panelowi górnemu i widocznemu sterowaniu z regulowanym kątem widzenia. Ponadto sterowanie jest intuicyjne i wygodne za pomocą systemowego panelu sterowania Logamatic BC400 z ekranem dotykowym.
Stworzony z myślą o przyszłości
Jednym z gazowych źródeł energii, które mają ogromny potencjał, jeśli chodzi o ochronę środowiska, jest wodór. Logamax plus GB172i.2 są fabrycznie przygotowane do zasilania gazem ziemnym lub mieszanką 20% wodoru z gazem ziemnym, co pozwala znacznie zmniejszyć emisję CO 2 . To rozwiązanie jest kolejnym krokiem w kierunku osiągnięcia celów klimatycznych.
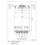
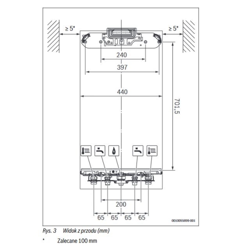
Zakres dostawy:
[1] Gazowy kocioł kondensacyjny
[2] Płyta mocująca
[3] Czujnik temperatury zewnętrznej
[4] Zawór bezpieczeństwa węża i materiał mocujący (śruby z osprzętem dodatkowym)
[5] Komplet dokumentów produktu
[6] Sterownik RC100.2
Nikt jeszcze nie napisał recenzji do tego produktu. Bądź pierwszy i napisz recenzję.
Tylko zarejestrowani klienci mogą pisać recenzje do produktów. Jeżeli posiadasz konto w naszym sklepie zaloguj się na nie, jeżeli nie załóż bezpłatne konto i napisz recenzję.